El queso cheddar es uno de los quesos más consumidos a nivel mundial. De textura firme y cuyo sabor puede ir de suave a más intenso, se elabora con leche de vaca y puede presentar tonos que van desde el blanco pálido hasta el naranja intenso. Originario del pueblo de Cheddar (Inglaterra), hoy se produce en todo el mundo en versiones jóvenes (maduración de 2–3 semanas) o añejas (más de 12 meses). Gracias a su demanda internacional, la producción industrial requiere de líneas eficientes, fiables y de alta capacidad, con control estable de parámetros críticos como humedad, acidez y textura. En Fibosa ofrecemos soluciones tecnológicas avanzadas para la fabricación del queso Cheddar.
La eficiencia de las líneas de producción de Fibosa en la fabricación del queso cheddar
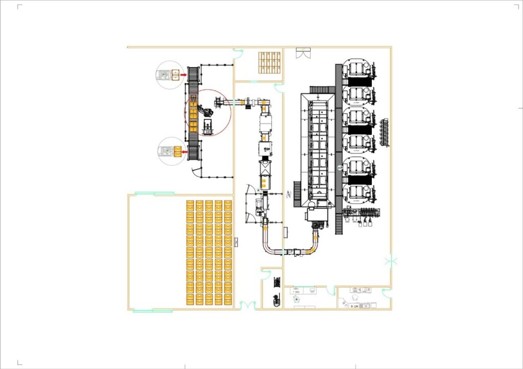
En FIBOSA diseñamos y fabricamos líneas completas para la producción de queso Cheddar adaptadas a las necesidades específicas de cada cliente. Nuestras soluciones integrales combinan avanzada automatización, alta capacidad productiva y tecnología propia para garantizar procesos eficientes y fiables.
1. Elaboración y Traslado
La producción comienza en las cubas de elaboración, donde se prepara la cuajada. Una vez listo, se utilizan bombas de traslado para llevar el producto hacia la siguiente fase del proceso continuo.

2. Cheddarización (Cheddarizadora FIDDAR)
Ésta es la etapa central donde se transforma la textura de la cuajada mediante diversos procesos automatizados:
- Desuerado y volteo: Se forma un colchón de cuajada que pasa por tres líneas de drenaje inicial con volteo automático.
- Acidificación y texturizado: El producto se acidifica y adquiere la textura característica del cheddar.
- Escarificado: Un bombo escarificador corta la cuajada en pedazos pequeños llamados «chips».
- Salado en seco: Se aplica sal en seco con un sistema de agitación posterior para garantizar su uniformidad.
3. Formación de bloques (Columna al Vacío)
Las «chips» de cuajada se introducen en la columna formadora de bloques al vacío. El producto se compacta a medida que desciende por la columna en un entorno de vacío para obtener un bloque homogéneo y sin aire.
4. Corte y Embolsado
- Corte: Un sistema de guillotina divide la columna de queso compactado en bloques de dimensiones precisas (como 350×280 mm).
- Embolsado: Un actuador neumático o un robot de embolsar introduce el bloque automáticamente en su bolsa.
5. Finalización del envase
El proceso sigue con el envasado y sellado, seguido del retractilado para ajustar el envase al producto. Por último, se realiza un proceso de soplado y barrido para limpiar o secar los paquetes antes de salir de la línea.
6. Almacenamiento y Maduración
Los bloques terminados se trasladan a las zonas de almacenamiento, donde se mantienen para su maduración, que puede ir desde unas semanas hasta más de 12 meses según el tipo de cheddar deseado.
Toda la línea está coordinada por un control centralizado y incluye sistemas de limpieza CIP para garantizar la máxima higiene en cada etapa.
La Cheddarizadora automática FIDDAR de Fibosa

El proceso que da nombre al queso es la cheddarización, un baile de transformaciones físicas y químicas. El corazón de este proceso es la cheddarizadora automática FIDDAR , diseñada para gestionar el desuerrado, la acidificación, el salado y el texturizado de la cuajada de forma ininterrumpida, con capacidades que oscilan entre los 1.000 y los 10.000 kg/h (según modelo).
Dentro de la FIDDAR, el producto avanza por tres líneas de drenaje fundamentales que definen su arquitectura técnica:
- Drenaje inicial y volteo: Donde se forma el «colchón de cuajada» característico, y volteo automático.
- Cheddarización y corte: El proceso de maduración de la cuajada antes de pasar por el bombo escarificador que la corta en «chips» .
- Acabado y salida: La etapa final donde el producto se le añade la sal, se estabiliza y está listo para su compactación.
La cheddarizadora automática integra cintas transportadoras de velocidad regulable, volteo de cuajada y un sistema de salado en seco con agitación posterior para mejorar la uniformidad de sal y el comportamiento de la pasta antes del formato.
Su estructura cerrada en acero inoxidable garantiza higiene y control del proceso. Incluye sistema CIP y control centralizado para limpieza automática y operación segura. Con capacidad de 1000 a 10000 kg/h en continuo, asegura eficiencia, uniformidad y una fácil integración en líneas industriales de queso cheddar.
La Columna Formadora de Bloques al Vacío: Cómo las «chips» se convierten en bloques

La Columna Formadora de bloques al Vacío (XC352806) forma bloques compactos de queso cheddar a partir de las chips procedentes de la cheddarizadora. El equipo, totalmente cerrado y fabricado en acero inoxidable alimenticio, incluye control de vacío, acabado liso, perforaciones para una limpieza rápida y sistema CIP. Incorpora bombas de vacío, elevador regulable y control centralizado para su integración con la línea de producción. Dispone de depósito de suero con bomba centrífuga para extracción y limpieza.


La eficiencia de esta columna, con una velocidad de producción de hasta 2 bloques por minuto (medidas de 350×280 mm) refleja su potencia industrial:
- Consumo de aire: 150 L/min.
- Consumo de agua: 140 L/h.
- Potencia instalada: 25 kW.
El proceso finaliza con un sistema de corte tipo guillotina de gran precisión mediante un actuador neumático que extrae el producto sin manipulación manual. Posteriormente se embolsa y se sella al vacío.
La transformación de la fabricación del queso cheddar es un caso de éxito donde la tecnología —mediante la automatización y el trabajo en continuo— ha logrado elevar un proceso tradicional a la categoría de hito de la ingeniería alimentaria moderna.
Gracias a nuestra amplia experiencia en el sector quesero ya un conocimiento aplicado profundo, en Fibosa diseñamos y fabricamos soluciones flexibles para la producción de queso Cheddar, adaptadas a las necesidades de cada cliente, con diseños de planta totalmente automatizados y de alta capacidad para garantizar estabilidad de proceso y uniformidad de producto.

Contacta con nosotros y te ayudaremos a definir la línea ideal según tu capacidad y requisitos de integración en planta.




